ID CP2786774

Clădire de birouri-pret redus până în 20 ian– D+P+3E+M cu teren 360 mp

ID CP2786774

1,490,000 €

Spațiu de birouri de vânzare
Drumul Sarii, Bucuresti
880 mp
2001

Clădire de birouri– D+P+3E+M, situată în București, zona Dr. Sării, Sector 6

Prețul afișat este redus de la 1.850.000 euro și este valabil până în 20 ianuarie.

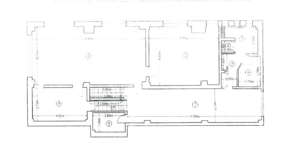
Suprafață construită desfășurată: 1.123 mp

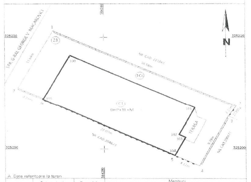
Teren: 360 mp (curți–construcții)

An construcție: 2001 | Renovare completă: 2011

Se oferă spre vânzare o clădire de birouri modernă, cu regim de înălțime Ds + P + 3E + M, amplasată într-o zonă liniștită și bine conectată a Sectorului 6.

Imobilul este amplasat pe un teren de 360 mp, are o amprentă la sol de 191 mp și o suprafață construită desfășurată de 1.123 mp.

Construită pe structură de beton armat, cu închideri din cărămidă și planșee din beton armat, clădirea beneficiază de fațadă modernă tip perete cortină, realizată în urma lucrărilor de modernizare efectuate în 2011.

Aspectul este contemporan și elegant, potrivit pentru o companie care dorește o imagine reprezentativă.

Dotări și finisaje

Încălzire proprie – fiecare nivel/apartament dispune de centrală termică individuală

Toate utilitățile (apă, gaz, electricitate, canalizare)

Finisaje moderne, spații vitrate amplu și lumină naturală abundentă

Posibilitate de instalare lift

Locuri de parcare – 3 în proprietate + 7 închiriate

Curte proprie amenajabilă, cu posibilitate de parcare extra

Alte detalii tehnice și juridice

Structură: beton armat, zidărie de cărămidă, planșee din beton, șarpantă din lemn cu învelitoare din tablă

Vechime: construcție 2001, modernizare 2011

Pentru detalii suplimentare și programarea unei vizionări: 0762763611

Citește mai mult

  • Tip imobil
    Clădire birouri
  • Etaj
    Demisol, Parter, 1, 2, 3, Mansarda
  • Suprafață construită
    1,123 mp
  • Suprafață utilă
    880 mp
  • Disponibilitate
    Imediat
  • Parcări suprafață
    3
  • Parcări suprafață disponibile
    10
  • An construcție
    2001
  • Construcție nouă
    Da
  • Număr etaje clădire
    3
  • Are demisol
    Da
  • Are mansardă
    Da

Facilități

Afișare logo pe clădire
Centrală termică
Contorizare separată
Gresie
Internet
Parcare deschisă
Stație de autobuz în apropiere
Stație de metrou în apropiere
Telefon
Diana Neamtu
Administrator

0762763611


Solicită chiar acum o vizionare
Telefon
Sună acum Solicită vizionare
Necesare:

Site-ul nu poate funcționa corect fără aceste cookie-uri. Vezi cookie-urile

Statistică:

Strângem statistici anonime despre voi, vizitatorii unici, pentru a vă îmbunătăți experiența dumneavoastră. Vezi cookie-urile

Marketing:

Pentru a ne promova mai eficient serviciile noastre, folosim cookies pentru a vă identifica și a vă oferi proprietăți și servicii personalizate. Vezi cookie-urile

Acest site folosește cookies, află detalii. Alege ce tipuri de cookies dorești să permitem: